中古住宅フルリノベーション 一宮市A様邸
スタイリッシュカーポート『M-SHADE』のある家
中古住宅フルリノベーション
お客様のご要望
築23年のユニット住宅を全改修したい
間接照明を使って落着ける空間にしてほしい
LDKは電気式床暖房を設置してほしい
玄関にシューズインクローゼットを設置してほしい
エクステリアの美観を重視したい
駐車場には3台の車を入れたい
カーポート・玄関アプローチ

・強度とスタイリッシュなデザイン性を兼ね備えたカーポート『M-SHADE』を採用、繊細な美しさを感じるエントランスに仕上がりました。
・壁面装飾には、石積みの風合いを醸し出す天然石『アンテプレート』のロマノブラック色、道路境界には乱形の石英岩『オークルストーンブルーノ』を敷設。直線的なデザインが多い中に曲線の柔らかさを加えアクセントとして採用しました。
・跳ね上げ門扉『ラビーネ』は家族用2台、来客用1台に分けて設置、車内からのリモコンで楽に操作できます。
エクステリア・邸全景

・美しいプロポーションのカーポート『M-SHADE』、繊細なデザインの電動跳ね上げ門扉『ラビーネ』、表情豊かな石積み調の天然石『アンテプレート』の壁装を主役とし、モノトーンを基調としたクールでスタイリッシュな邸宅に生まれ変わりました。
リビング間接照明(コーブ照明)


・リビング入口の壁に角度があり、良いアクセントになりました。ダウンライトを消せば、天井を優しく照らす間接光がリビングスペースを、映像を楽しむくつろぎの空間に変えてくれます。夜間、カーテン越しに見える美しいカーポートの光がまた、雰囲気づくりに一役買ってくれています。
ダイニング・システム収納


・キッチンカウンター下のダイニング側に幅2.5mのシステム収納を新設しました。食卓の上では食事だけでなく様々な生活シーンがあります。生活小物、新聞雑誌、お子様の文房具や携帯の充電器などをすぐ手の届く場所に収納でき、非常に使い勝手の良い便利なおすすめアイテムです。
玄関廻り~シューズインクローゼット・エコカラット

・調質効果のあるエコカラット、幾何学的な模様の『ニュートランス』のホワイト色で玄関が引き締まります。
・広縁側に玄関スペースを拡張しシューズインクローゼットを新設、下駄箱がないので玄関がスッキリして見えます。
手洗いカウンター付きトイレ

・手洗い器付カウンター設置で便利になったトイレ。
・右壁はエコカラットのコンビネーション貼りです、色々な組み合わせを作成しました。
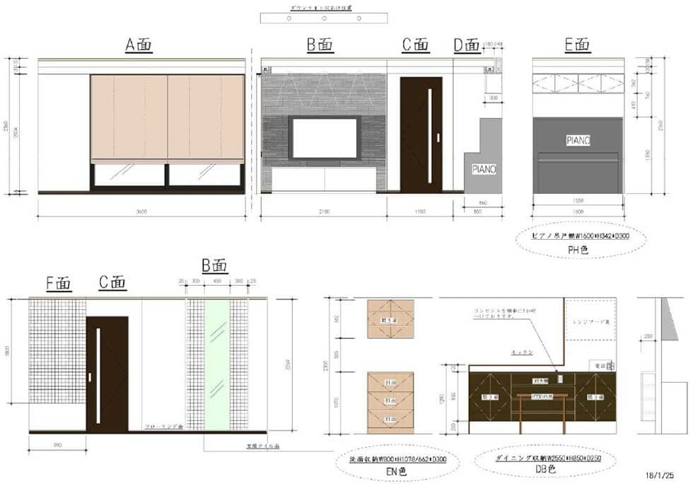
内部装飾、収納計画PLAN図

・玄関正面、姿見廻り、リビングTV背面壁装飾をエコカラットにてプランニング
・ダイニングスペース、ピアノ廻りに収納増強をプランニング
外装塗装3Dシミュレーション

平面図 Before~After

・無駄な通路を取込みLDKを拡張、ピアノスペースを確保してドアの位置を決めてあります。
・通風タイプの勝手ロドアをキッチン東側に新設、電気式床暖房を敷込み寒さ対策も万全です。
・広縁スペースを玄関側からのシューズインクローゼットに割り付け、面積が減った玄関を煩雑にしないよう工夫してあります。
・洗面、浴室の水廻りを拡張し、1.25坪サイズのユニットバスを設置、WCはカウンター手洗い器付タイプに変更しました。