戸建リフォーム東郷町K様邸

戸建リフォーム東郷町K様邸


築54年の老朽化した和風建築の内部・外部全改装

tk0.jpg tk04.jpg tk03.jpg tk02.jpg

ご要望

①敷地東側に物置や厠があり日が差さず、リビングとダイニングキッチンが寒くて暗い
②玄関廻りを中心に、家中段差だらけで何とかしてほしい
③浴室、トイレがタイル貼りで寒い
④和室が多く収納が足りない

 
見所

  1. ご主人の思い入れのある、古き良き材料をポイントとして残し、磨き御影石貼りとじゅらく壁塗り替えをベースに新しいパーツを組み込み、全体にやや抑えめのライティングで風格のある玄関ホールを目指した。
  2. 今では珍しい手漉きガラスの透過光が御影石に映え、気持ちを安らかにしてくれます。また、奥様のセンスの良い花飾りと細身の掛け軸選定が、見事に空間にマッチングして文字通り『華』を添えてくれました。
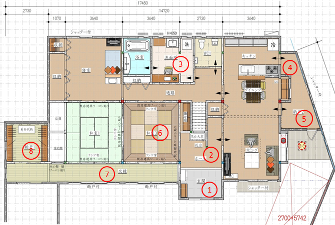
  3. 水廻りを大胆に北側にプラン移動することで、条件の悪かった和室スペースが広くて快適な水廻りスペースに変身しました。(洗面所4.5帖、トイレ1坪、浴室1.25坪)帖洗面所、1坪トイレ、1.25坪浴室
  4. キッチン東は光と風が入るように窓の位置を工夫し、広めのパントリースペースを確保し、テーブルの横に引出収納兼TV台を新設しました。
  5. パントリースペースは勝手口を作って、庭のウッドデッキ・土間へ動線をつなげたので雨降りの日でも家事作業ができ、洗濯物も干せます。
  6. 玄関横の和室8畳間を、栗色の琉球畳敷き・飾り棚TVボードのある応接ができるスペースに仕上げました。この部屋のランマ、細工ガラスも年月を超えた味を醸し出しています。
  7. 縁側はアルミサッシにすべてやり替え、木戸と木雨戸の不便さから解放され、ケヤキ床敷きでダウンライトを採用し落ち着いた空間になりました。
  8. 廊下突き当りは衣類の集中収納で、和服用の桐盆もクローゼットに組み込みました。

①② 玄関ホール

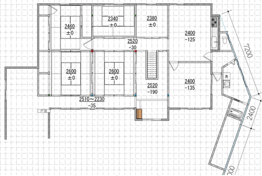
Before

After

⑥ 和室

⑦ 広縁

Others